AMSTERDAM - Indische Buurt
€ 450.000
Sumatrastraat 37-2
4 Kamers
1 Badkamers
3 Slaapkamers
54 m²
A
Onbekend
Bezichtiging plannen
Beschrijving
JA! Charmant, instapklaar en goed ingedeeld 4-kamerappartement op EIGEN grond in de levendige Sumatrastraat, hartje Indische Buurt, Amsterdam-Oost. Gelegen op de hoek van de bruisende Javastraat met gezellige winkels, horecagelegenheden en het Flevopark op loopafstand. Recentelijk is het pand gerenoveerd, waarbij onder andere de fundering is hersteld.
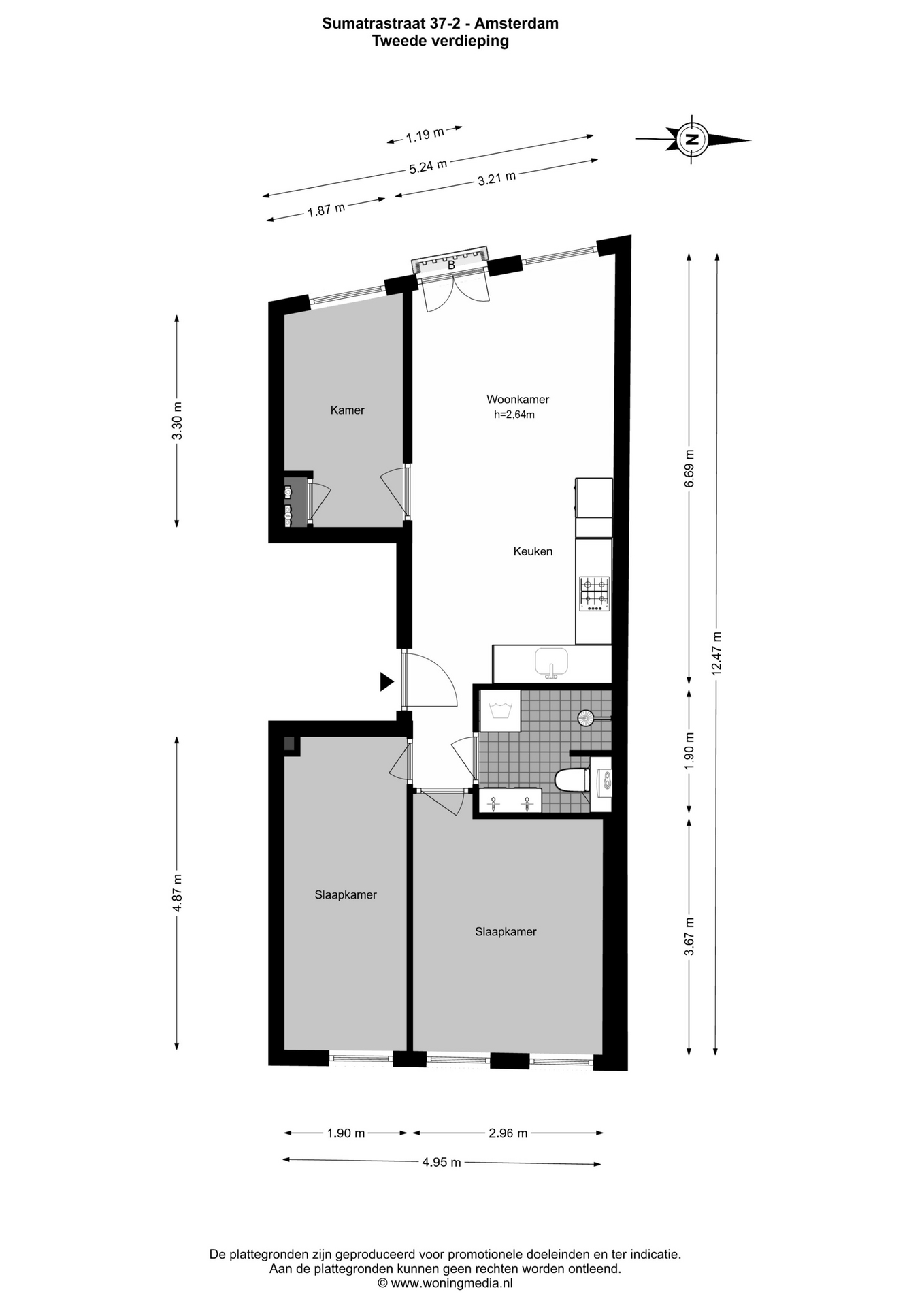
De woning beschikt over een lichte woonkamer met open keuken en Frans balkon, drie goed bemeten slaapkamers en een nette badkamer. Daarnaast zal er een oostelijk gelegen balkon worden geplaatst van circa 10 m².
Kortom: een licht en comfortabel appartement met drie slaapkamers én een riant balkon op een toplocatie in Amsterdam-Oost!
INDELING
De woning is gelegen op de tweede verdieping en is te betreden via het nette, gemeenschappelijke trappenhuis.
WONEN & LEVEN
- Aan de voorzijde bevindt zich de living met uitzicht op de Sumatrastraat;
- Openslaande deuren bieden toegang tot het frans balkon aan de voorzijde;
- De open leefkeuken is uitgevoerd met witte keukenkastjes en een glanzend aanrechtblad;
- In de keuken is er inbouwapparatuur, met o.a.: 4-pits gasfornuis met afzuigkap, oven,
vaatwasser, koelkast en vriezer;
- Genoeg ruimte in de woonkamer voor een royale zithoek en een eettafel.
SLAPEN & BADEN
- De woning beschikt over drie slaapvertrekken;
- Twee slaapvertrekken zijn gelegen aan de rustige achterzijde;
- Beide slaapkamers bieden genoeg ruimte voor een 2-persoonsbed en een kast;
- De derde slaapkamer bevindt zich aan de voorzijde van de woning en kan perfect gebruikt
worden als werkkamer of kinderkamer.
BADKAMER
- De woning beschikt over een nette badkamer;
- De badkamer is uitgerust met een douche met glazen wand, toilet, dubbele wastafel met lades en een spiegel erboven.
- Hier is tevens ook een aansluiting voor witgoed aanwezig.
WOONOPPERVLAKTE
- De woonoppervlakte bedraagt 54,20 m²;
- De gebouwgebonden buitenruimte bedraagt 0,30 m².
NB. De opgegeven oppervlakte is door een gespecialiseerd bedrijf gemeten conform NEN2580.
BOUWAARD & TECHNISCHE INFORMATIE
- De woning is gelegen in een pand dat omstreeks 1902 gebouwd is;
- Traditionele bouwstijl;
- Recentelijk is het pand gerenoveerd, waarbij ook de fundering is hersteld;
- Houten kozijnen, voorzien van dubbele beglazing;
- Verwarming en warm water middels Cv-ketel;
- Elektriciteit: voldoende groepen met aardlekschakelaar;
- Energielabel A.
KADASTER & SPLITSING
- Kadastrale aanduiding Amsterdam S 10194 A3
- Het pand is op 8 november 2022 gesplitst in 5 appartementsrechten;
- Het appartementsrecht A3 is voor 2/12e aandeel in de gemeenschap gerechtigd.
EIGEN GROND
- De woning is gelegen op eigen grond.
VERENIGING VAN EIGENAREN
- De VvE is ingeschreven in het Kadaster met nummer 98880861;
- De VvE wordt professioneel worden beheerd door Parel VvE Beheer Amsterdam;
- De servicekosten bedragen per 1 januari 2026 circa €116,20 per maand.
LOCATIE
- De Sumatrastraat is gelegen in de Indische buurt in Amsterdam-Oost, een bruisende en
levendige stadswijk met een mix van buurtwinkels, lunch- & horecazaken en kleinschalige
speciaalzaken;
- De buurt heeft een informele, stads-buurtse sfeer en is populair bij jonge bewoners en
gezinnen;
- Voor de dagelijkse boodschappen bevinden zich op loopafstand diverse supermarkten en
speciaalzaken;
- Voor een borrel, lunch of diner zijn er volop mogelijkheden in de buurt: o.a.: Bar Botanique,
Mitts, The Meets, Wilde Zwijnen of Bar Basquiat;
- Het Flevopark bevindt zich op 10 minuten lopen voor een heerlijke wandeling;
- Actieve buurt met regelmatige markten en lokale initiatieven, wat zorgt voor een levendige en
sociale woonomgeving.
BEREIKBAARHEID EN PARKEREN
- Openbaar vervoer is uitstekend: tramlijn 14 stopt bij Molukkenstraat / Javaplein slechts 6
minuten lopen en daarnaast bevinden zich in de buurt verschillende bushaltes;
- Het NS-station Muiderpoort en halte Dapperstraat (regionale trein-, tram- en busverbindingen) is tevens op loopafstand;
- Met de auto is de Sumatrastraat eenvoudig bereikbaar vanaf de A10; parkeren gebeurt op straat volgens het Amsterdamse vergunning-/betaalsysteem;
- Voor meer informatie over parkeren, zie de website van de gemeente Amsterdam.
BIJZONDERHEDEN
- Instapklaar appartement in de bruisende Indische buurt;
- Recentelijk is het pand gerenoveerd, waarbij ook de fundering is hersteld;
- Woonoppervlakte bedraagt circa 54 m²;
- Lichte woonkamer met open keuken;
- Maar liefst drie slaapkamers;
- Openslaande deuren naar een sfeervol Frans balkon aan de voorzijde;
- Er zal tevens een balkon van circa 10 m² aan de achterzijde (oosten) worden geplaatst;
- Gelegen op EIGEN GROND.
BIJZONDERE VERKOOPVOORWAARDEN
- Project notaris Legal Loyalty, Koopakte conform model Ring Amsterdam;
- Een niet-zelfbewoning-, ouderdom-, asbest- en ‘as is where is’ clausule zullen worden opgenomen in de koopakte.
OPLEVERING
De oplevering zal plaatsvinden in overleg.
OP AANVRAAG BESCHIKBAAR
- Eigendomsakte
- Energielabel A
- Splitsingsakte
- Stukken VvE
- Meetrapport
---------------------------
YES! Charming, move-in ready and well-laid-out 4-room apartment on FREEHOLD LAND in the lively Sumatrastraat, right in the heart of the Indische Buurt, Amsterdam-East. Located on the corner of the bustling Javastraat with its cozy shops, cafés and restaurants, and with the Flevopark within walking distance. The building has recently been renovated, including foundation restoration.
The apartment features a bright living room with open kitchen and French balcony, three well-proportioned bedrooms and a neat bathroom. In addition, an east-facing balcony of approximately 10 m² will be installed.
In short: a light and comfortable apartment with three bedrooms and a generous balcony in a prime location in Amsterdam-East!
LAYOUT
The apartment is located on the second floor and can be accessed via the neat communal staircase.
LIVING & LIFE
- At the front is the living area with views over the Sumatrastraat;
- French doors provide access to the French balcony at the front;
- The open-plan kitchen is fitted with white kitchen cabinets and a glossy countertop;
- The kitchen includes built-in appliances such as: 4-burner gas stove with extractor hood, oven, dishwasher, refrigerator and freezer;
- The living room offers ample space for a generous seating area and a dining table.
SLEEPING & BATHING
- The apartment has three bedrooms;
- Two bedrooms are located at the quiet rear of the property;
- Both bedrooms offer sufficient space for a double bed and a wardrobe;
- The third bedroom is located at the front of the apartment and is perfect for use as a home office or children’s room.
BATHROOM
- The apartment has a neat bathroom;
- The bathroom is equipped with a shower with glass partition, toilet, double washbasin with drawers and a mirror above;
- There is also a connection for laundry appliances.
LIVING AREA
- The living area amounts to 54.20 m²;
- The building-related outdoor space amounts to 0.30 m².
NB. The stated surface area has been measured by a specialized company in accordance with NEN2580.
CONSTRUCTION & TECHNICAL INFORMATION
- The apartment is located in a building constructed around 1902;
- Traditional construction style;
- The building has recently been renovated, including foundation restoration;
- Wooden window frames with double glazing;
- Heating and hot water via central heating boiler;
- Electricity: sufficient groups with residual current device;
- Energy label A.
LAND REGISTRY & SPLIT
- Cadastral designation: Amsterdam S 10194 A3;
- The building was split into 5 apartment rights on November 8, 2022;
- Apartment right A3 is entitled to a 2/12th share in the community.
FREEHOLD LAND
- The apartment is located on freehold land.
HOMEOWNERS’ ASSOCIATION (VvE)
- The VvE is registered with the Land Registry under number 98880861;
- The VvE is professionally managed by Parel VvE Beheer Amsterdam;
- The service charges amount to approximately €116,20 per month as of January 1, 2026.
LOCATION
- Sumatrastraat is located in the Indische Buurt in Amsterdam-East, a vibrant and lively urban district with a mix of neighborhood shops, lunch spots, cafés and small specialty stores;
- The area has an informal, urban neighborhood atmosphere and is popular with young residents and families;
- Various supermarkets and specialty shops for daily groceries are within walking distance;
- Plenty of options for drinks, lunch or dinner in the area, including: Bar Botanique, Mitts, The Meets, Wilde Zwijnen or Bar Basquiat;
- Flevopark is a 10-minute walk away for a pleasant stroll;
- An active neighborhood with regular markets and local initiatives, contributing to a lively and social living environment.
ACCESSIBILITY AND PARKING
- Public transport is excellent: tram line 14 stops at Molukkenstraat / Javaplein just a 6-minute walk away, and there are several bus stops nearby;
- NS station Muiderpoort and Dapperstraat stop (regional train, tram and bus connections) are also within walking distance;
- By car, Sumatrastraat is easily accessible from the A10; parking is on-street according to the Amsterdam permit/paid parking system;
- For more information about parking, see the website of the Municipality of Amsterdam.
SPECIAL FEATURES
- Move-in ready apartment in the vibrant Indische Buurt;
- The building has recently been renovated, including foundation restoration;
- Living area approximately 54 m²;
- Bright living room with open kitchen;
- No fewer than three bedrooms;
- French doors to a charming French balcony at the front;
- An additional balcony of approximately 10 m² will be installed at the rear (east-facing);
- Located on freehold land.
SPECIAL SALE CONDITIONS
- Project notary: Legal Loyalty, purchase agreement in accordance with the Ring Amsterdam model;
- A non-owner-occupancy clause, age clause, asbestos clause and ‘as is where is’ clause will be included in the purchase agreement.
DELIVERY
Delivery will take place in consultation.
AVAILABLE UPON REQUEST
- Deed of ownership
- Energy label A
- Deed of division
- VvE documents
- Measurement report
De woning beschikt over een lichte woonkamer met open keuken en Frans balkon, drie goed bemeten slaapkamers en een nette badkamer. Daarnaast zal er een oostelijk gelegen balkon worden geplaatst van circa 10 m².
Kortom: een licht en comfortabel appartement met drie slaapkamers én een riant balkon op een toplocatie in Amsterdam-Oost!
INDELING
De woning is gelegen op de tweede verdieping en is te betreden via het nette, gemeenschappelijke trappenhuis.
WONEN & LEVEN
- Aan de voorzijde bevindt zich de living met uitzicht op de Sumatrastraat;
- Openslaande deuren bieden toegang tot het frans balkon aan de voorzijde;
- De open leefkeuken is uitgevoerd met witte keukenkastjes en een glanzend aanrechtblad;
- In de keuken is er inbouwapparatuur, met o.a.: 4-pits gasfornuis met afzuigkap, oven,
vaatwasser, koelkast en vriezer;
- Genoeg ruimte in de woonkamer voor een royale zithoek en een eettafel.
SLAPEN & BADEN
- De woning beschikt over drie slaapvertrekken;
- Twee slaapvertrekken zijn gelegen aan de rustige achterzijde;
- Beide slaapkamers bieden genoeg ruimte voor een 2-persoonsbed en een kast;
- De derde slaapkamer bevindt zich aan de voorzijde van de woning en kan perfect gebruikt
worden als werkkamer of kinderkamer.
BADKAMER
- De woning beschikt over een nette badkamer;
- De badkamer is uitgerust met een douche met glazen wand, toilet, dubbele wastafel met lades en een spiegel erboven.
- Hier is tevens ook een aansluiting voor witgoed aanwezig.
WOONOPPERVLAKTE
- De woonoppervlakte bedraagt 54,20 m²;
- De gebouwgebonden buitenruimte bedraagt 0,30 m².
NB. De opgegeven oppervlakte is door een gespecialiseerd bedrijf gemeten conform NEN2580.
BOUWAARD & TECHNISCHE INFORMATIE
- De woning is gelegen in een pand dat omstreeks 1902 gebouwd is;
- Traditionele bouwstijl;
- Recentelijk is het pand gerenoveerd, waarbij ook de fundering is hersteld;
- Houten kozijnen, voorzien van dubbele beglazing;
- Verwarming en warm water middels Cv-ketel;
- Elektriciteit: voldoende groepen met aardlekschakelaar;
- Energielabel A.
KADASTER & SPLITSING
- Kadastrale aanduiding Amsterdam S 10194 A3
- Het pand is op 8 november 2022 gesplitst in 5 appartementsrechten;
- Het appartementsrecht A3 is voor 2/12e aandeel in de gemeenschap gerechtigd.
EIGEN GROND
- De woning is gelegen op eigen grond.
VERENIGING VAN EIGENAREN
- De VvE is ingeschreven in het Kadaster met nummer 98880861;
- De VvE wordt professioneel worden beheerd door Parel VvE Beheer Amsterdam;
- De servicekosten bedragen per 1 januari 2026 circa €116,20 per maand.
LOCATIE
- De Sumatrastraat is gelegen in de Indische buurt in Amsterdam-Oost, een bruisende en
levendige stadswijk met een mix van buurtwinkels, lunch- & horecazaken en kleinschalige
speciaalzaken;
- De buurt heeft een informele, stads-buurtse sfeer en is populair bij jonge bewoners en
gezinnen;
- Voor de dagelijkse boodschappen bevinden zich op loopafstand diverse supermarkten en
speciaalzaken;
- Voor een borrel, lunch of diner zijn er volop mogelijkheden in de buurt: o.a.: Bar Botanique,
Mitts, The Meets, Wilde Zwijnen of Bar Basquiat;
- Het Flevopark bevindt zich op 10 minuten lopen voor een heerlijke wandeling;
- Actieve buurt met regelmatige markten en lokale initiatieven, wat zorgt voor een levendige en
sociale woonomgeving.
BEREIKBAARHEID EN PARKEREN
- Openbaar vervoer is uitstekend: tramlijn 14 stopt bij Molukkenstraat / Javaplein slechts 6
minuten lopen en daarnaast bevinden zich in de buurt verschillende bushaltes;
- Het NS-station Muiderpoort en halte Dapperstraat (regionale trein-, tram- en busverbindingen) is tevens op loopafstand;
- Met de auto is de Sumatrastraat eenvoudig bereikbaar vanaf de A10; parkeren gebeurt op straat volgens het Amsterdamse vergunning-/betaalsysteem;
- Voor meer informatie over parkeren, zie de website van de gemeente Amsterdam.
BIJZONDERHEDEN
- Instapklaar appartement in de bruisende Indische buurt;
- Recentelijk is het pand gerenoveerd, waarbij ook de fundering is hersteld;
- Woonoppervlakte bedraagt circa 54 m²;
- Lichte woonkamer met open keuken;
- Maar liefst drie slaapkamers;
- Openslaande deuren naar een sfeervol Frans balkon aan de voorzijde;
- Er zal tevens een balkon van circa 10 m² aan de achterzijde (oosten) worden geplaatst;
- Gelegen op EIGEN GROND.
BIJZONDERE VERKOOPVOORWAARDEN
- Project notaris Legal Loyalty, Koopakte conform model Ring Amsterdam;
- Een niet-zelfbewoning-, ouderdom-, asbest- en ‘as is where is’ clausule zullen worden opgenomen in de koopakte.
OPLEVERING
De oplevering zal plaatsvinden in overleg.
OP AANVRAAG BESCHIKBAAR
- Eigendomsakte
- Energielabel A
- Splitsingsakte
- Stukken VvE
- Meetrapport
---------------------------
YES! Charming, move-in ready and well-laid-out 4-room apartment on FREEHOLD LAND in the lively Sumatrastraat, right in the heart of the Indische Buurt, Amsterdam-East. Located on the corner of the bustling Javastraat with its cozy shops, cafés and restaurants, and with the Flevopark within walking distance. The building has recently been renovated, including foundation restoration.
The apartment features a bright living room with open kitchen and French balcony, three well-proportioned bedrooms and a neat bathroom. In addition, an east-facing balcony of approximately 10 m² will be installed.
In short: a light and comfortable apartment with three bedrooms and a generous balcony in a prime location in Amsterdam-East!
LAYOUT
The apartment is located on the second floor and can be accessed via the neat communal staircase.
LIVING & LIFE
- At the front is the living area with views over the Sumatrastraat;
- French doors provide access to the French balcony at the front;
- The open-plan kitchen is fitted with white kitchen cabinets and a glossy countertop;
- The kitchen includes built-in appliances such as: 4-burner gas stove with extractor hood, oven, dishwasher, refrigerator and freezer;
- The living room offers ample space for a generous seating area and a dining table.
SLEEPING & BATHING
- The apartment has three bedrooms;
- Two bedrooms are located at the quiet rear of the property;
- Both bedrooms offer sufficient space for a double bed and a wardrobe;
- The third bedroom is located at the front of the apartment and is perfect for use as a home office or children’s room.
BATHROOM
- The apartment has a neat bathroom;
- The bathroom is equipped with a shower with glass partition, toilet, double washbasin with drawers and a mirror above;
- There is also a connection for laundry appliances.
LIVING AREA
- The living area amounts to 54.20 m²;
- The building-related outdoor space amounts to 0.30 m².
NB. The stated surface area has been measured by a specialized company in accordance with NEN2580.
CONSTRUCTION & TECHNICAL INFORMATION
- The apartment is located in a building constructed around 1902;
- Traditional construction style;
- The building has recently been renovated, including foundation restoration;
- Wooden window frames with double glazing;
- Heating and hot water via central heating boiler;
- Electricity: sufficient groups with residual current device;
- Energy label A.
LAND REGISTRY & SPLIT
- Cadastral designation: Amsterdam S 10194 A3;
- The building was split into 5 apartment rights on November 8, 2022;
- Apartment right A3 is entitled to a 2/12th share in the community.
FREEHOLD LAND
- The apartment is located on freehold land.
HOMEOWNERS’ ASSOCIATION (VvE)
- The VvE is registered with the Land Registry under number 98880861;
- The VvE is professionally managed by Parel VvE Beheer Amsterdam;
- The service charges amount to approximately €116,20 per month as of January 1, 2026.
LOCATION
- Sumatrastraat is located in the Indische Buurt in Amsterdam-East, a vibrant and lively urban district with a mix of neighborhood shops, lunch spots, cafés and small specialty stores;
- The area has an informal, urban neighborhood atmosphere and is popular with young residents and families;
- Various supermarkets and specialty shops for daily groceries are within walking distance;
- Plenty of options for drinks, lunch or dinner in the area, including: Bar Botanique, Mitts, The Meets, Wilde Zwijnen or Bar Basquiat;
- Flevopark is a 10-minute walk away for a pleasant stroll;
- An active neighborhood with regular markets and local initiatives, contributing to a lively and social living environment.
ACCESSIBILITY AND PARKING
- Public transport is excellent: tram line 14 stops at Molukkenstraat / Javaplein just a 6-minute walk away, and there are several bus stops nearby;
- NS station Muiderpoort and Dapperstraat stop (regional train, tram and bus connections) are also within walking distance;
- By car, Sumatrastraat is easily accessible from the A10; parking is on-street according to the Amsterdam permit/paid parking system;
- For more information about parking, see the website of the Municipality of Amsterdam.
SPECIAL FEATURES
- Move-in ready apartment in the vibrant Indische Buurt;
- The building has recently been renovated, including foundation restoration;
- Living area approximately 54 m²;
- Bright living room with open kitchen;
- No fewer than three bedrooms;
- French doors to a charming French balcony at the front;
- An additional balcony of approximately 10 m² will be installed at the rear (east-facing);
- Located on freehold land.
SPECIAL SALE CONDITIONS
- Project notary: Legal Loyalty, purchase agreement in accordance with the Ring Amsterdam model;
- A non-owner-occupancy clause, age clause, asbestos clause and ‘as is where is’ clause will be included in the purchase agreement.
DELIVERY
Delivery will take place in consultation.
AVAILABLE UPON REQUEST
- Deed of ownership
- Energy label A
- Deed of division
- VvE documents
- Measurement report
Beschrijving
JA! Charmant, instapklaar en goed ingedeeld 4-kamerappartement op EIGEN grond in de levendige Sumatrastraat, hartje Indische Buurt, Amsterdam-Oost. Gelegen op de hoek van de bruisende Javastraat met gezellige winkels, horecagelegenheden en het Flevopark op loopafstand. Recentelijk is het pand gerenoveerd, waarbij onder andere de fundering is hersteld.
De woning beschikt over een lichte woonkamer met open keuken en Frans balkon, drie goed bemeten slaapkamers en een nette badkamer. Daarnaast zal er een oostelijk gelegen balkon worden geplaatst van circa 10 m².
Kortom: een licht en comfortabel appartement met drie slaapkamers én een riant balkon op een toplocatie in Amsterdam-Oost!
INDELING
De woning is gelegen op de tweede verdieping en is te betreden via het nette, gemeenschappelijke trappenhuis.
WONEN & LEVEN
- Aan de voorzijde bevindt zich de living met uitzicht op de Sumatrastraat;
- Openslaande deuren bieden toegang tot het frans balkon aan de voorzijde;
- De open leefkeuken is uitgevoerd met witte keukenkastjes en een glanzend aanrechtblad;
- In de keuken is er inbouwapparatuur, met o.a.: 4-pits gasfornuis met afzuigkap, oven,
vaatwasser, koelkast en vriezer;
- Genoeg ruimte in de woonkamer voor een royale zithoek en een eettafel.
SLAPEN & BADEN
- De woning beschikt over drie slaapvertrekken;
- Twee slaapvertrekken zijn gelegen aan de rustige achterzijde;
- Beide slaapkamers bieden genoeg ruimte voor een 2-persoonsbed en een kast;
- De derde slaapkamer bevindt zich aan de voorzijde van de woning en kan perfect gebruikt
worden als werkkamer of kinderkamer.
BADKAMER
- De woning beschikt over een nette badkamer;
- De badkamer is uitgerust met een douche met glazen wand, toilet, dubbele wastafel met lades en een spiegel erboven.
- Hier is tevens ook een aansluiting voor witgoed aanwezig.
WOONOPPERVLAKTE
- De woonoppervlakte bedraagt 54,20 m²;
- De gebouwgebonden buitenruimte bedraagt 0,30 m².
NB. De opgegeven oppervlakte is door een gespecialiseerd bedrijf gemeten conform NEN2580.
BOUWAARD & TECHNISCHE INFORMATIE
- De woning is gelegen in een pand dat omstreeks 1902 gebouwd is;
- Traditionele bouwstijl;
- Recentelijk is het pand gerenoveerd, waarbij ook de fundering is hersteld;
- Houten kozijnen, voorzien van dubbele beglazing;
- Verwarming en warm water middels Cv-ketel;
- Elektriciteit: voldoende groepen met aardlekschakelaar;
- Energielabel A.
KADASTER & SPLITSING
- Kadastrale aanduiding Amsterdam S 10194 A3
- Het pand is op 8 november 2022 gesplitst in 5 appartementsrechten;
- Het appartementsrecht A3 is voor 2/12e aandeel in de gemeenschap gerechtigd.
EIGEN GROND
- De woning is gelegen op eigen grond.
VERENIGING VAN EIGENAREN
- De VvE is ingeschreven in het Kadaster met nummer 98880861;
- De VvE wordt professioneel worden beheerd door Parel VvE Beheer Amsterdam;
- De servicekosten bedragen per 1 januari 2026 circa €116,20 per maand.
LOCATIE
- De Sumatrastraat is gelegen in de Indische buurt in Amsterdam-Oost, een bruisende en
levendige stadswijk met een mix van buurtwinkels, lunch- & horecazaken en kleinschalige
speciaalzaken;
- De buurt heeft een informele, stads-buurtse sfeer en is populair bij jonge bewoners en
gezinnen;
- Voor de dagelijkse boodschappen bevinden zich op loopafstand diverse supermarkten en
speciaalzaken;
- Voor een borrel, lunch of diner zijn er volop mogelijkheden in de buurt: o.a.: Bar Botanique,
Mitts, The Meets, Wilde Zwijnen of Bar Basquiat;
- Het Flevopark bevindt zich op 10 minuten lopen voor een heerlijke wandeling;
- Actieve buurt met regelmatige markten en lokale initiatieven, wat zorgt voor een levendige en
sociale woonomgeving.
BEREIKBAARHEID EN PARKEREN
- Openbaar vervoer is uitstekend: tramlijn 14 stopt bij Molukkenstraat / Javaplein slechts 6
minuten lopen en daarnaast bevinden zich in de buurt verschillende bushaltes;
- Het NS-station Muiderpoort en halte Dapperstraat (regionale trein-, tram- en busverbindingen) is tevens op loopafstand;
- Met de auto is de Sumatrastraat eenvoudig bereikbaar vanaf de A10; parkeren gebeurt op straat volgens het Amsterdamse vergunning-/betaalsysteem;
- Voor meer informatie over parkeren, zie de website van de gemeente Amsterdam.
BIJZONDERHEDEN
- Instapklaar appartement in de bruisende Indische buurt;
- Recentelijk is het pand gerenoveerd, waarbij ook de fundering is hersteld;
- Woonoppervlakte bedraagt circa 54 m²;
- Lichte woonkamer met open keuken;
- Maar liefst drie slaapkamers;
- Openslaande deuren naar een sfeervol Frans balkon aan de voorzijde;
- Er zal tevens een balkon van circa 10 m² aan de achterzijde (oosten) worden geplaatst;
- Gelegen op EIGEN GROND.
BIJZONDERE VERKOOPVOORWAARDEN
- Project notaris Legal Loyalty, Koopakte conform model Ring Amsterdam;
- Een niet-zelfbewoning-, ouderdom-, asbest- en ‘as is where is’ clausule zullen worden opgenomen in de koopakte.
OPLEVERING
De oplevering zal plaatsvinden in overleg.
OP AANVRAAG BESCHIKBAAR
- Eigendomsakte
- Energielabel A
- Splitsingsakte
- Stukken VvE
- Meetrapport
---------------------------
YES! Charming, move-in ready and well-laid-out 4-room apartment on FREEHOLD LAND in the lively Sumatrastraat, right in the heart of the Indische Buurt, Amsterdam-East. Located on the corner of the bustling Javastraat with its cozy shops, cafés and restaurants, and with the Flevopark within walking distance. The building has recently been renovated, including foundation restoration.
The apartment features a bright living room with open kitchen and French balcony, three well-proportioned bedrooms and a neat bathroom. In addition, an east-facing balcony of approximately 10 m² will be installed.
In short: a light and comfortable apartment with three bedrooms and a generous balcony in a prime location in Amsterdam-East!
LAYOUT
The apartment is located on the second floor and can be accessed via the neat communal staircase.
LIVING & LIFE
- At the front is the living area with views over the Sumatrastraat;
- French doors provide access to the French balcony at the front;
- The open-plan kitchen is fitted with white kitchen cabinets and a glossy countertop;
- The kitchen includes built-in appliances such as: 4-burner gas stove with extractor hood, oven, dishwasher, refrigerator and freezer;
- The living room offers ample space for a generous seating area and a dining table.
SLEEPING & BATHING
- The apartment has three bedrooms;
- Two bedrooms are located at the quiet rear of the property;
- Both bedrooms offer sufficient space for a double bed and a wardrobe;
- The third bedroom is located at the front of the apartment and is perfect for use as a home office or children’s room.
BATHROOM
- The apartment has a neat bathroom;
- The bathroom is equipped with a shower with glass partition, toilet, double washbasin with drawers and a mirror above;
- There is also a connection for laundry appliances.
LIVING AREA
- The living area amounts to 54.20 m²;
- The building-related outdoor space amounts to 0.30 m².
NB. The stated surface area has been measured by a specialized company in accordance with NEN2580.
CONSTRUCTION & TECHNICAL INFORMATION
- The apartment is located in a building constructed around 1902;
- Traditional construction style;
- The building has recently been renovated, including foundation restoration;
- Wooden window frames with double glazing;
- Heating and hot water via central heating boiler;
- Electricity: sufficient groups with residual current device;
- Energy label A.
LAND REGISTRY & SPLIT
- Cadastral designation: Amsterdam S 10194 A3;
- The building was split into 5 apartment rights on November 8, 2022;
- Apartment right A3 is entitled to a 2/12th share in the community.
FREEHOLD LAND
- The apartment is located on freehold land.
HOMEOWNERS’ ASSOCIATION (VvE)
- The VvE is registered with the Land Registry under number 98880861;
- The VvE is professionally managed by Parel VvE Beheer Amsterdam;
- The service charges amount to approximately €116,20 per month as of January 1, 2026.
LOCATION
- Sumatrastraat is located in the Indische Buurt in Amsterdam-East, a vibrant and lively urban district with a mix of neighborhood shops, lunch spots, cafés and small specialty stores;
- The area has an informal, urban neighborhood atmosphere and is popular with young residents and families;
- Various supermarkets and specialty shops for daily groceries are within walking distance;
- Plenty of options for drinks, lunch or dinner in the area, including: Bar Botanique, Mitts, The Meets, Wilde Zwijnen or Bar Basquiat;
- Flevopark is a 10-minute walk away for a pleasant stroll;
- An active neighborhood with regular markets and local initiatives, contributing to a lively and social living environment.
ACCESSIBILITY AND PARKING
- Public transport is excellent: tram line 14 stops at Molukkenstraat / Javaplein just a 6-minute walk away, and there are several bus stops nearby;
- NS station Muiderpoort and Dapperstraat stop (regional train, tram and bus connections) are also within walking distance;
- By car, Sumatrastraat is easily accessible from the A10; parking is on-street according to the Amsterdam permit/paid parking system;
- For more information about parking, see the website of the Municipality of Amsterdam.
SPECIAL FEATURES
- Move-in ready apartment in the vibrant Indische Buurt;
- The building has recently been renovated, including foundation restoration;
- Living area approximately 54 m²;
- Bright living room with open kitchen;
- No fewer than three bedrooms;
- French doors to a charming French balcony at the front;
- An additional balcony of approximately 10 m² will be installed at the rear (east-facing);
- Located on freehold land.
SPECIAL SALE CONDITIONS
- Project notary: Legal Loyalty, purchase agreement in accordance with the Ring Amsterdam model;
- A non-owner-occupancy clause, age clause, asbestos clause and ‘as is where is’ clause will be included in the purchase agreement.
DELIVERY
Delivery will take place in consultation.
AVAILABLE UPON REQUEST
- Deed of ownership
- Energy label A
- Deed of division
- VvE documents
- Measurement report
De woning beschikt over een lichte woonkamer met open keuken en Frans balkon, drie goed bemeten slaapkamers en een nette badkamer. Daarnaast zal er een oostelijk gelegen balkon worden geplaatst van circa 10 m².
Kortom: een licht en comfortabel appartement met drie slaapkamers én een riant balkon op een toplocatie in Amsterdam-Oost!
INDELING
De woning is gelegen op de tweede verdieping en is te betreden via het nette, gemeenschappelijke trappenhuis.
WONEN & LEVEN
- Aan de voorzijde bevindt zich de living met uitzicht op de Sumatrastraat;
- Openslaande deuren bieden toegang tot het frans balkon aan de voorzijde;
- De open leefkeuken is uitgevoerd met witte keukenkastjes en een glanzend aanrechtblad;
- In de keuken is er inbouwapparatuur, met o.a.: 4-pits gasfornuis met afzuigkap, oven,
vaatwasser, koelkast en vriezer;
- Genoeg ruimte in de woonkamer voor een royale zithoek en een eettafel.
SLAPEN & BADEN
- De woning beschikt over drie slaapvertrekken;
- Twee slaapvertrekken zijn gelegen aan de rustige achterzijde;
- Beide slaapkamers bieden genoeg ruimte voor een 2-persoonsbed en een kast;
- De derde slaapkamer bevindt zich aan de voorzijde van de woning en kan perfect gebruikt
worden als werkkamer of kinderkamer.
BADKAMER
- De woning beschikt over een nette badkamer;
- De badkamer is uitgerust met een douche met glazen wand, toilet, dubbele wastafel met lades en een spiegel erboven.
- Hier is tevens ook een aansluiting voor witgoed aanwezig.
WOONOPPERVLAKTE
- De woonoppervlakte bedraagt 54,20 m²;
- De gebouwgebonden buitenruimte bedraagt 0,30 m².
NB. De opgegeven oppervlakte is door een gespecialiseerd bedrijf gemeten conform NEN2580.
BOUWAARD & TECHNISCHE INFORMATIE
- De woning is gelegen in een pand dat omstreeks 1902 gebouwd is;
- Traditionele bouwstijl;
- Recentelijk is het pand gerenoveerd, waarbij ook de fundering is hersteld;
- Houten kozijnen, voorzien van dubbele beglazing;
- Verwarming en warm water middels Cv-ketel;
- Elektriciteit: voldoende groepen met aardlekschakelaar;
- Energielabel A.
KADASTER & SPLITSING
- Kadastrale aanduiding Amsterdam S 10194 A3
- Het pand is op 8 november 2022 gesplitst in 5 appartementsrechten;
- Het appartementsrecht A3 is voor 2/12e aandeel in de gemeenschap gerechtigd.
EIGEN GROND
- De woning is gelegen op eigen grond.
VERENIGING VAN EIGENAREN
- De VvE is ingeschreven in het Kadaster met nummer 98880861;
- De VvE wordt professioneel worden beheerd door Parel VvE Beheer Amsterdam;
- De servicekosten bedragen per 1 januari 2026 circa €116,20 per maand.
LOCATIE
- De Sumatrastraat is gelegen in de Indische buurt in Amsterdam-Oost, een bruisende en
levendige stadswijk met een mix van buurtwinkels, lunch- & horecazaken en kleinschalige
speciaalzaken;
- De buurt heeft een informele, stads-buurtse sfeer en is populair bij jonge bewoners en
gezinnen;
- Voor de dagelijkse boodschappen bevinden zich op loopafstand diverse supermarkten en
speciaalzaken;
- Voor een borrel, lunch of diner zijn er volop mogelijkheden in de buurt: o.a.: Bar Botanique,
Mitts, The Meets, Wilde Zwijnen of Bar Basquiat;
- Het Flevopark bevindt zich op 10 minuten lopen voor een heerlijke wandeling;
- Actieve buurt met regelmatige markten en lokale initiatieven, wat zorgt voor een levendige en
sociale woonomgeving.
BEREIKBAARHEID EN PARKEREN
- Openbaar vervoer is uitstekend: tramlijn 14 stopt bij Molukkenstraat / Javaplein slechts 6
minuten lopen en daarnaast bevinden zich in de buurt verschillende bushaltes;
- Het NS-station Muiderpoort en halte Dapperstraat (regionale trein-, tram- en busverbindingen) is tevens op loopafstand;
- Met de auto is de Sumatrastraat eenvoudig bereikbaar vanaf de A10; parkeren gebeurt op straat volgens het Amsterdamse vergunning-/betaalsysteem;
- Voor meer informatie over parkeren, zie de website van de gemeente Amsterdam.
BIJZONDERHEDEN
- Instapklaar appartement in de bruisende Indische buurt;
- Recentelijk is het pand gerenoveerd, waarbij ook de fundering is hersteld;
- Woonoppervlakte bedraagt circa 54 m²;
- Lichte woonkamer met open keuken;
- Maar liefst drie slaapkamers;
- Openslaande deuren naar een sfeervol Frans balkon aan de voorzijde;
- Er zal tevens een balkon van circa 10 m² aan de achterzijde (oosten) worden geplaatst;
- Gelegen op EIGEN GROND.
BIJZONDERE VERKOOPVOORWAARDEN
- Project notaris Legal Loyalty, Koopakte conform model Ring Amsterdam;
- Een niet-zelfbewoning-, ouderdom-, asbest- en ‘as is where is’ clausule zullen worden opgenomen in de koopakte.
OPLEVERING
De oplevering zal plaatsvinden in overleg.
OP AANVRAAG BESCHIKBAAR
- Eigendomsakte
- Energielabel A
- Splitsingsakte
- Stukken VvE
- Meetrapport
---------------------------
YES! Charming, move-in ready and well-laid-out 4-room apartment on FREEHOLD LAND in the lively Sumatrastraat, right in the heart of the Indische Buurt, Amsterdam-East. Located on the corner of the bustling Javastraat with its cozy shops, cafés and restaurants, and with the Flevopark within walking distance. The building has recently been renovated, including foundation restoration.
The apartment features a bright living room with open kitchen and French balcony, three well-proportioned bedrooms and a neat bathroom. In addition, an east-facing balcony of approximately 10 m² will be installed.
In short: a light and comfortable apartment with three bedrooms and a generous balcony in a prime location in Amsterdam-East!
LAYOUT
The apartment is located on the second floor and can be accessed via the neat communal staircase.
LIVING & LIFE
- At the front is the living area with views over the Sumatrastraat;
- French doors provide access to the French balcony at the front;
- The open-plan kitchen is fitted with white kitchen cabinets and a glossy countertop;
- The kitchen includes built-in appliances such as: 4-burner gas stove with extractor hood, oven, dishwasher, refrigerator and freezer;
- The living room offers ample space for a generous seating area and a dining table.
SLEEPING & BATHING
- The apartment has three bedrooms;
- Two bedrooms are located at the quiet rear of the property;
- Both bedrooms offer sufficient space for a double bed and a wardrobe;
- The third bedroom is located at the front of the apartment and is perfect for use as a home office or children’s room.
BATHROOM
- The apartment has a neat bathroom;
- The bathroom is equipped with a shower with glass partition, toilet, double washbasin with drawers and a mirror above;
- There is also a connection for laundry appliances.
LIVING AREA
- The living area amounts to 54.20 m²;
- The building-related outdoor space amounts to 0.30 m².
NB. The stated surface area has been measured by a specialized company in accordance with NEN2580.
CONSTRUCTION & TECHNICAL INFORMATION
- The apartment is located in a building constructed around 1902;
- Traditional construction style;
- The building has recently been renovated, including foundation restoration;
- Wooden window frames with double glazing;
- Heating and hot water via central heating boiler;
- Electricity: sufficient groups with residual current device;
- Energy label A.
LAND REGISTRY & SPLIT
- Cadastral designation: Amsterdam S 10194 A3;
- The building was split into 5 apartment rights on November 8, 2022;
- Apartment right A3 is entitled to a 2/12th share in the community.
FREEHOLD LAND
- The apartment is located on freehold land.
HOMEOWNERS’ ASSOCIATION (VvE)
- The VvE is registered with the Land Registry under number 98880861;
- The VvE is professionally managed by Parel VvE Beheer Amsterdam;
- The service charges amount to approximately €116,20 per month as of January 1, 2026.
LOCATION
- Sumatrastraat is located in the Indische Buurt in Amsterdam-East, a vibrant and lively urban district with a mix of neighborhood shops, lunch spots, cafés and small specialty stores;
- The area has an informal, urban neighborhood atmosphere and is popular with young residents and families;
- Various supermarkets and specialty shops for daily groceries are within walking distance;
- Plenty of options for drinks, lunch or dinner in the area, including: Bar Botanique, Mitts, The Meets, Wilde Zwijnen or Bar Basquiat;
- Flevopark is a 10-minute walk away for a pleasant stroll;
- An active neighborhood with regular markets and local initiatives, contributing to a lively and social living environment.
ACCESSIBILITY AND PARKING
- Public transport is excellent: tram line 14 stops at Molukkenstraat / Javaplein just a 6-minute walk away, and there are several bus stops nearby;
- NS station Muiderpoort and Dapperstraat stop (regional train, tram and bus connections) are also within walking distance;
- By car, Sumatrastraat is easily accessible from the A10; parking is on-street according to the Amsterdam permit/paid parking system;
- For more information about parking, see the website of the Municipality of Amsterdam.
SPECIAL FEATURES
- Move-in ready apartment in the vibrant Indische Buurt;
- The building has recently been renovated, including foundation restoration;
- Living area approximately 54 m²;
- Bright living room with open kitchen;
- No fewer than three bedrooms;
- French doors to a charming French balcony at the front;
- An additional balcony of approximately 10 m² will be installed at the rear (east-facing);
- Located on freehold land.
SPECIAL SALE CONDITIONS
- Project notary: Legal Loyalty, purchase agreement in accordance with the Ring Amsterdam model;
- A non-owner-occupancy clause, age clause, asbestos clause and ‘as is where is’ clause will be included in the purchase agreement.
DELIVERY
Delivery will take place in consultation.
AVAILABLE UPON REQUEST
- Deed of ownership
- Energy label A
- Deed of division
- VvE documents
- Measurement report
powered by Friva | Lees ons Privacybeleid



















